Residence project presented with working drawing detail. Download this 2d AutoCAD drawing file.
Description
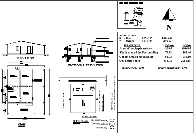
Residence project presented with working drawing detail. this drawing consists of elevation drawing and section drawing .also mentioned north direction and legend with certain sizes of door window and area of building.this can be used by architects and architects students. Download this 2d AutoCAD drawing file.
Uploaded by:
