This drawing stated section detail of the office desk. Download this 2d AutoCAD drawing file.
Description
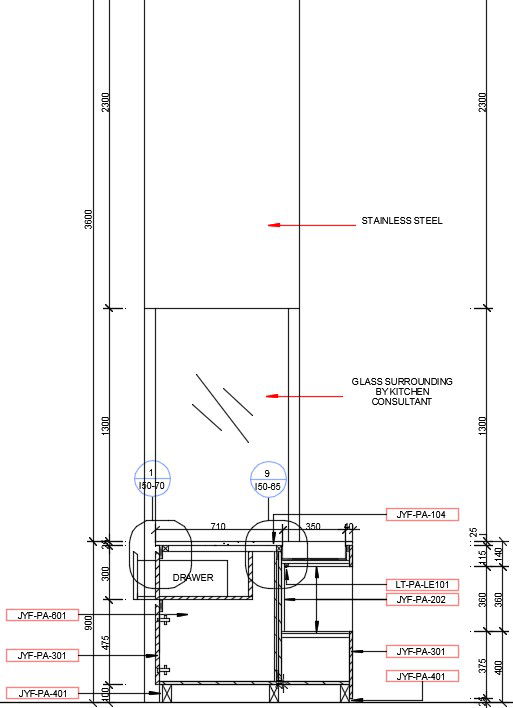
This drawing stated section detail of the office desk. sectional elevation detail of drawer also given with detail drawing dimensions and material code details is given in this cad file. this can be used by architects and designers. Download this 2d AutoCAD drawing file.
File Type:
DWG
File Size:
950 KB
Category::
Interior Design
Sub Category::
Modern Office Interior Design
type:
Gold
Uploaded by:

