1 BHK House Ground Floor Plan CAD Drawing DWG File
Description
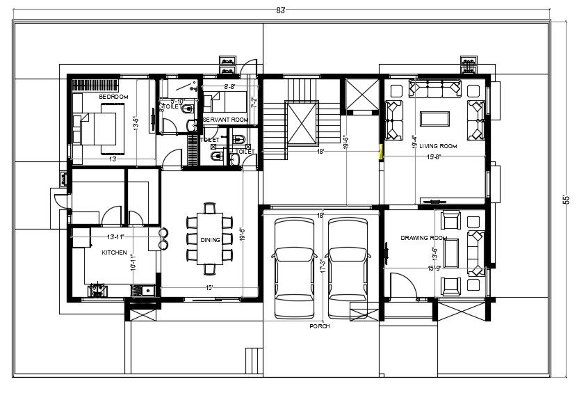
55'X83' house ground floor plan CAD drawing size space planning which consist master bedroom, servant room, toilet, modular kitchen, dining area, living room, drawing room, poyer area, and 2 big car parking porch. download 4500 square feet house furniture layout plan drawing DWG file.
Uploaded by:

