Swimming Pool Sports Center Plan CAD Drawing DWG File
Description
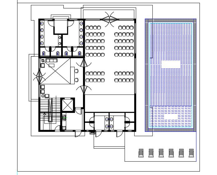
The swimming pool sports center layout plan CAD drawing which consist swimming pool, coaching hall, bathrooms, and reception area with all furniture layout design. Download the AutoCAD 2D DWG file. Thank you so much for downloading DWG file from our website.
Uploaded by:

