Front and Rear Elevation Multi Purpose office building. Download the AutoCAD DWG file.
Description
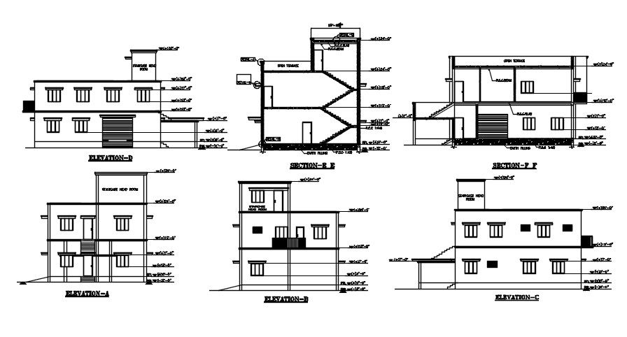
AutoCAD file front and rear elevation of a office with store building is described. The specification of the material, stair case legends, head room & ventilation details are given. For related terms download the file from our website.

Uploaded by:
Neha
mishra

