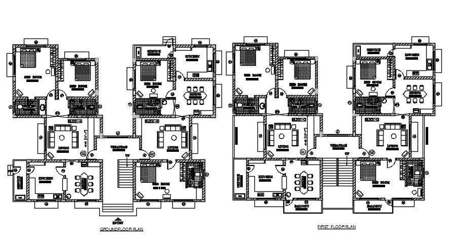
A Ground floor plan and first-floor plan of the apartment stated in this AutoCAD drawing file. Download this 2d AutoCAD drawing file.
Description
A Ground floor plan and first-floor plan of the apartment stated in this AutoCAD drawing file. this file consists of living, dining, bedroom detail with services, and staircase details are given in this file. this can be used by architects and engineers. Download this 2d AutoCAD drawing file.
Uploaded by:

