AutoCAD section detail Plan of Transmission tower. Download the AutoCAD DWG file.
Description
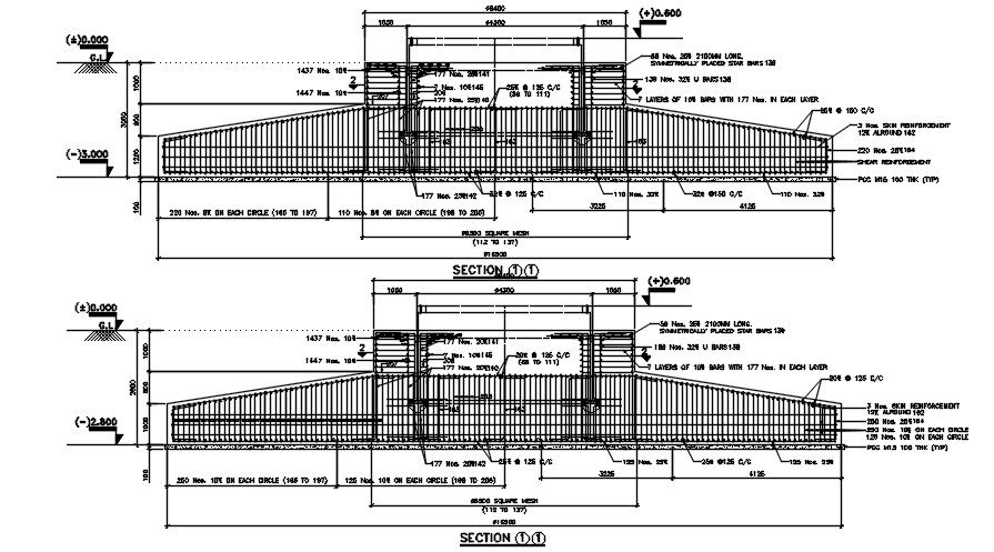
AutoCAD Reinforcement section plan of Transmission tower. The reinforcement details with cross sectional dimensions of the structural elements are specified. Square mesh reinforcement, Layers of the bars are also mentioned. Download the AutoCAD 2D file from our website.
File Type:
DWG
File Size:
183 KB
Category::
Construction
Sub Category::
Concrete And Reinforced Concrete Details
type:
Gold

Uploaded by:
Neha
mishra

