Plinth beam layout file. Download autocad dwg file | CADBULL
Description
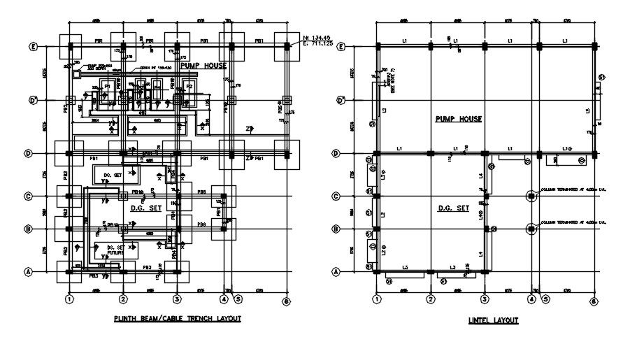
The plinth beam layout detail separated in this AutoCAD drawing file. this file consists of a plinth beam plan, lintel layout, and dimensions and naming detail given. foundations detail given it. this can be used by architects and engineers. Download this 2d AutoCAD drawing file.
Uploaded by:

