Key plan of Utility purpose hall. Download AutoCAD 2D file.
Description
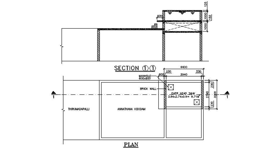
AutoCAD Key plan of Utility purpose hall is described.Cross sectional dimensions, structural elements with standard requirements are specified. detail of the overhead tank and sectional details of the manhole hole are also given Download AutoCAD 2D file from our website for detailed analyse.
File Type:
DWG
File Size:
99 KB
Category::
Construction
Sub Category::
Construction Detail Drawings
type:
Gold

Uploaded by:
Neha
mishra

