Junction box detail drawing. Download cad autocad file | CADBULL
Description
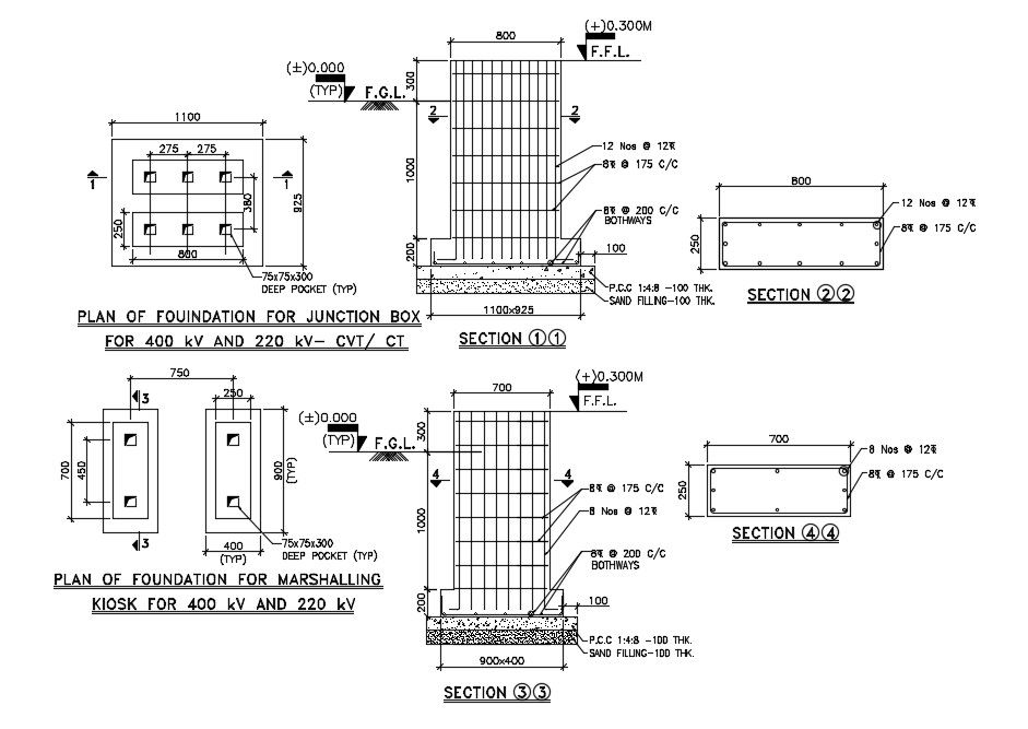
Foundation for junction box presented in this AutoCAD file. this file consists of the foundation for junctions and marshaling detail presented with dimensions, and material specification. this can be used by architects and engineers. Download this 2d Autocad drawing file.
Uploaded by:

