Control room detail. Download cad drawing file | CADBULL

Control room detail. Download cad drawing file | CADBULL
Profile

Uploaded by:

Dipika

Description
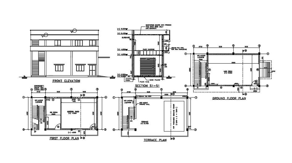
Control room detail drawing specified in this AutoCAD drawing file. this file consists of a control room plan, elevation, section detail with dimensions and material specifications. this can be used by architects and engineers. Download this 2d Autocad drawing file.
Profile

Uploaded by:

Dipika

find Latest

Related Files

WhatsApp Chat