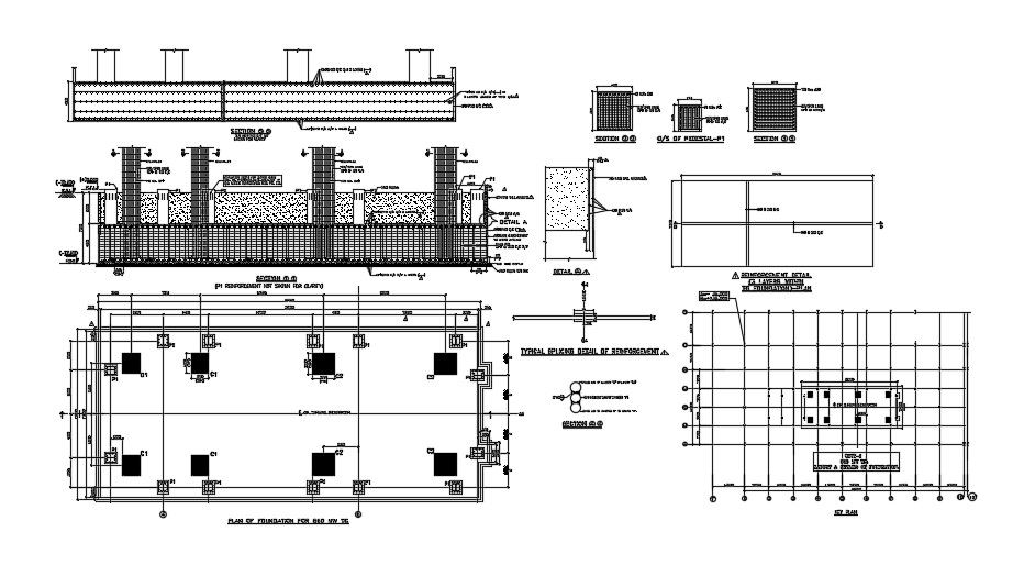
This file presents a foundation detail drawing. Download this 2d AutoCAD drawing file.
Description
This file presents a foundation detail drawing. in this AutoCAD file reinforcement detail of the footing plan and section is given in with dimensions and naming specification. this can be used by architects and engineers. Download this 2d AutoCAD drawing file.
Uploaded by:

