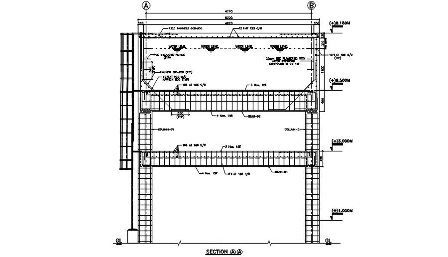
Beam, Column, and slab section details at the pump house are provided in this AutoCAD DWG file.Download now.
Description
Beam, Column, and slab section details at the pump house are provided in this AutoCAD DWG file. The files consist of the Beam-Column, and slab layout of the pump house with clear dimensions and material specifications. The water level also mentioned in this drawing. This drawing file is useful for structural and civil engineers. Download this 2d Autocad drawing file.
File Type:
DWG
File Size:
191 KB
Category::
Structure
Sub Category::
Section Plan CAD Blocks & DWG Drawing Models
type:
Gold

Uploaded by:
AS
SETHUPATHI

