90° Elbow Line With Steel Pipe Line Section Drawing DWG File
Description
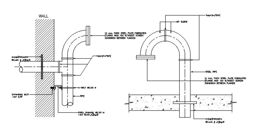
The plumbing pipe line connection with water tap 4 mm. thick steel plate fabricated flange, 50 w/insect screen sandwich between flanges, expansion blot and steel channel. Thank you for downloading the AutoCAD file and other CAD program from our website.
Uploaded by:

