Pipe Connection With Flexible Drain Box CAD Drawing DWG File
Description
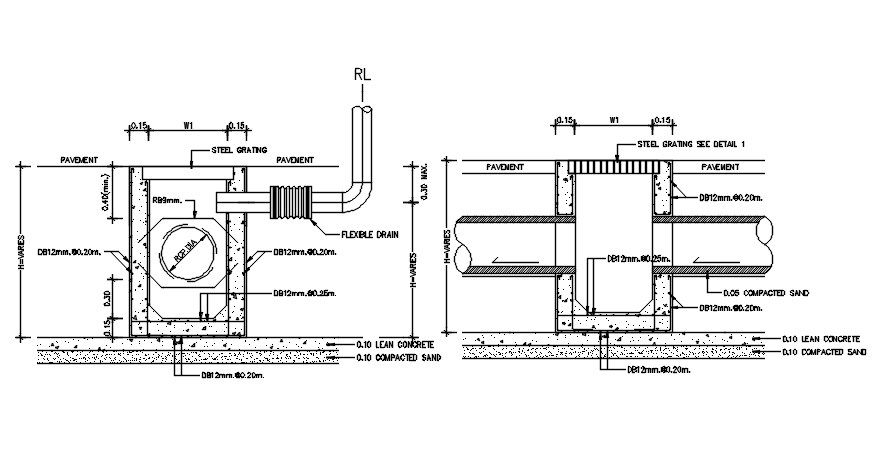
The drainage chamber box CAD drawing which consist top over steel grating, flexible drainage pile line, lean concrete level and pavement detail that shows front and side view drawing. Thank you for downloading the AutoCAD file and other CAD program from our website.
File Type:
DWG
File Size:
313 KB
Category::
Dwg Cad Blocks
Sub Category::
Autocad Plumbing Fixture Blocks
type:
Gold
Uploaded by:

