Gas Pumping Room For Chemical Plant Drawing DWG File
Description
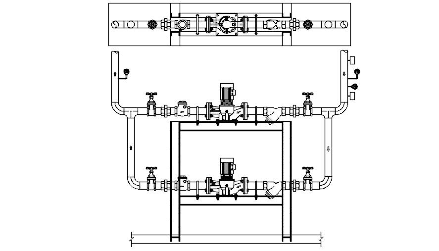
the industrial chemical factory plant CAD drawing shows gas pumping with control valve also has water services, refrigeration, petroleum as well as many chemical process in boiler factory plant. Thank you for downloading the AutoCAD file and other CAD program from our website.
Uploaded by:

