Chemical Industry Plant AutoCAD Section Drawing DWG File
Description
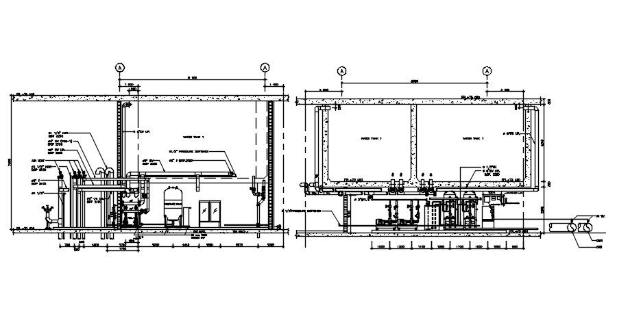
the chemical industry plant section drawing that shows pump room with control pressure valve, water tank, air vent, raw water inlet and soft water outlet with stage control board. Thank you for downloading the AutoCAD file and other CAD program from our website .
Uploaded by:
