Boiler Plant Manhole Cover Industrial CAD Layouts in DWG Drawing File
Description
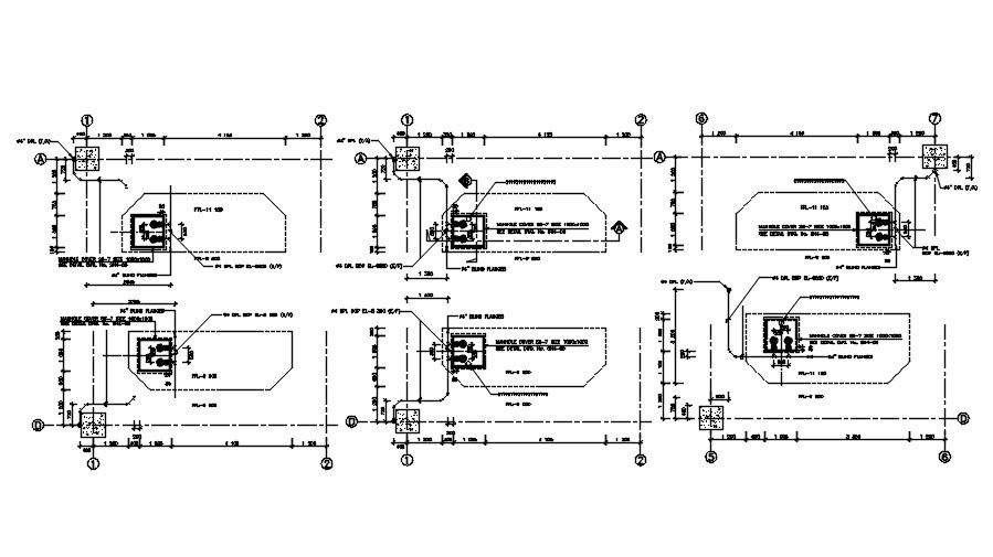
The AutoCAD drawing given the detail of manhole cover for water boiler plant detail which consist manhole cover size 1000X1000 see in this DWG file. also has blind flanges and wast outlet water connected. Thank you for downloading the AutoCAD file and other CAD program from our website.
File Type:
3d max
File Size:
460 KB
Category::
Dwg Cad Blocks
Sub Category::
Autocad Plumbing Fixture Blocks
type:
Gold
Uploaded by:

