Hostel floor plan detail drawing specified in this Autocad drawing file Download this 2d Autocad drawing file.
Description
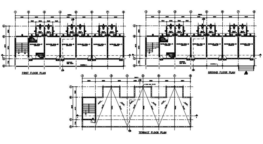
Hostel floor plan detail drawing specified in this Autocad drawing file. in this file, the first-floor plan, second-floor plan, the terrace floor plan is given with dimensions and material specification detail. this can be used by architects and engineers. Download this 2d Autocad drawing file.
Uploaded by:

