Boiler Plant AutoCAD Drawing Download DWG File
Description
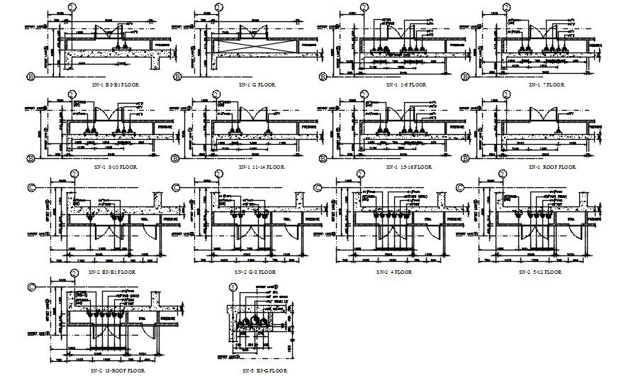
the boiler industry plant AutoCAD drawing that shows all measurement dimension detail, outlet waste water drain line, boiler pressure heater valve, and water tank unit for 10,000 liter capacity storage. thank you for downloading the AutoCAD file and other CAD program from our website.
Uploaded by:

