A control room lintel beam detail of polyvinyl plant has given in this Autocad DWG drawing file. Download the 2D Autocad DWG drawing file.
Description
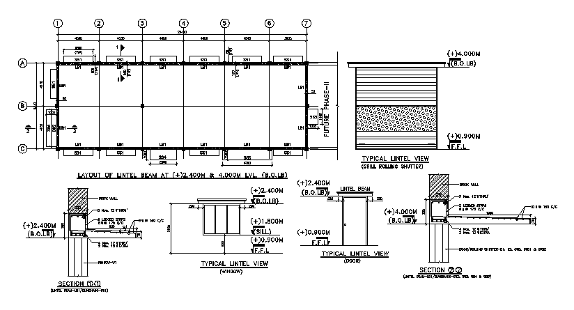
A control room lintel beam detail of polyvinyl plant has given in this Autocad DWG drawing file. Typical level details of lintel beam, section and layout details are provided in this drawing model and layout. Length and breadth of layout is 25m and 9m respectively. Thank you for downloading the AutoCAD file and other CAD program files from our website.
Uploaded by:

