Beam And Slab Layout Plan AutoCAD Drawing DWG File
Description
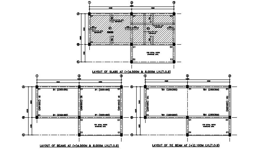
The Column beam with slab layout plan AutoCAD drawing that shows basic principles in determining the positions of columns and beam with center line plan detail. Thank you for downloading the AutoCAD file and other CAD program from our website.
File Type:
DWG
File Size:
59 KB
Category::
Construction
Sub Category::
Construction Detail Drawings
type:
Gold
Uploaded by:

