Site layout plan drawing provided in this Autocad file. Download this 2d Autocad drawing file.
Description
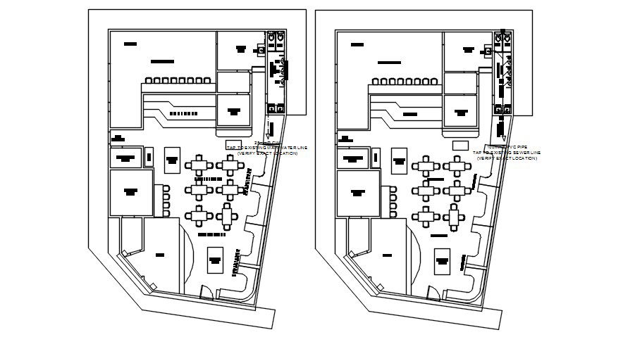
Site layout plan drawing provided in this Autocad file. this file consists of a cafe master plan detail drawing given with different zone and specifications in it. this can be used by civil engineers and engineers. Download this 2d Autocad drawing file.
File Type:
DWG
File Size:
993 KB
Category::
Interior Design
Sub Category::
Hotel And Restaurant Interior
type:
Gold
Uploaded by:

