Ceiling plan of the Restaurant detail drawing provided in this AutoCAD file. Download this 2d AutoCAD drawing file.
Description
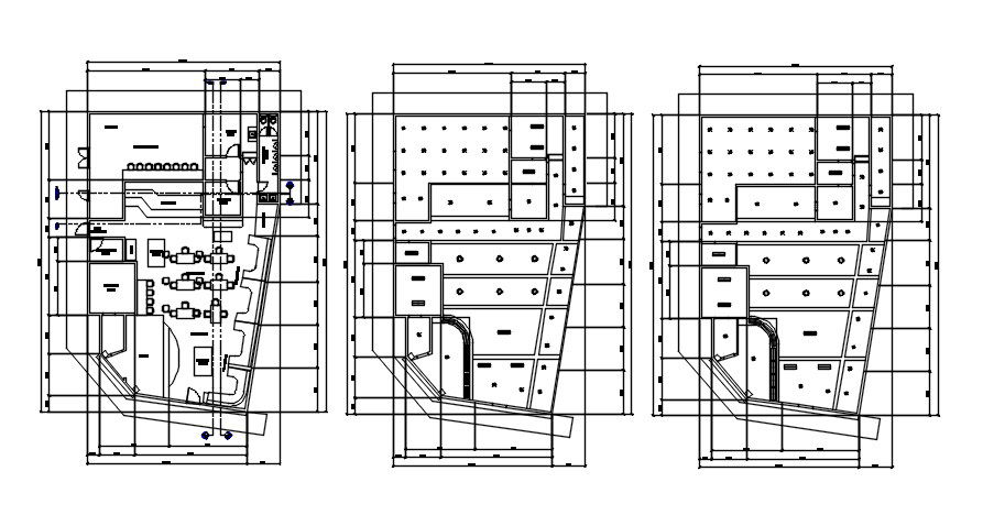
Ceiling plan of the Restaurant detail drawing provided in this AutoCAD file. this file consists of the light layout plan of the dining area, services and utilities detail drawing given with dimensions and specifications. this can be used by architects and engineers. Download this 2d AutoCAD drawing file.
File Type:
DWG
File Size:
967 KB
Category::
Interior Design
Sub Category::
Hotel And Restaurant Interior
type:
Gold
Uploaded by:

