Apartment Layout Plan Detail in AutoCAD DWG Drawing
Description
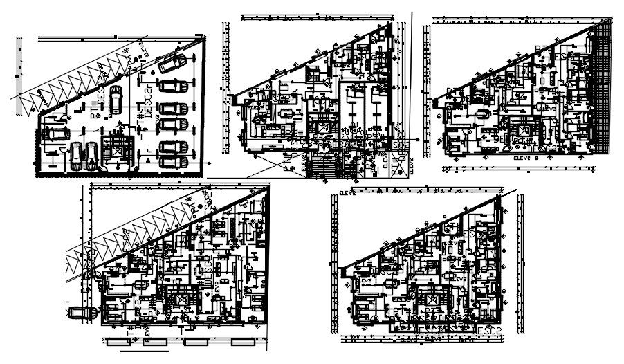
Apartment layout plan detail drawing specified in this Autocad file. this file consists of floor plan detail, working drawing, electrical drawing, basement plan given with specifications. this can be used by architects and engineers. Download this 2d AutoCAD drawing file.
Uploaded by:

