Restaurant section detail drawing presented in this AutoCAD file. Download this 2d AutoCAD drawing file.
Description
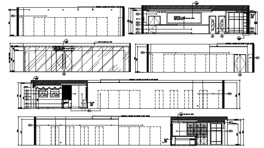
Restaurant section detail drawing presented in this AutoCAD file. this file consists of the front elevation of the entrance and sitting arrangement detail elevation given with dimensions and specifications. this can be used by architects and engineers. Download this 2d AutoCAD drawing file.
Uploaded by:
