Combine Footing Pad Foundation And Column Section Drawing DWG File
Description
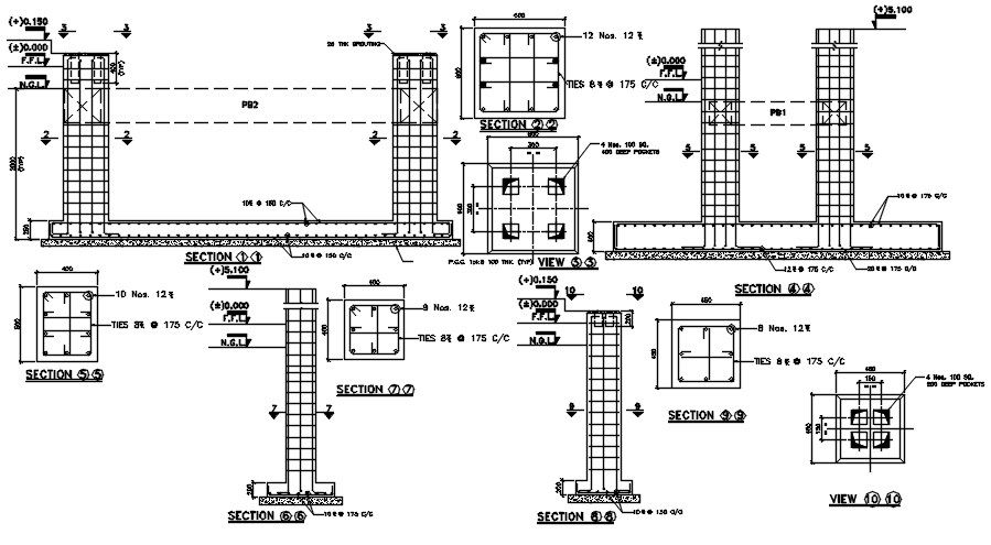
RCC combine footing foundation and column section CAD drawing that shows the detail of reinforcement with concrete view also its spreadsheets evaluate the loading input and output the best possible transmit these loads bearing. Thank you for downloading the AutoCAD file and other CAD program from our website.
Uploaded by:

