RCC Slab And Column Plan And Section Drawing DWG File
Description
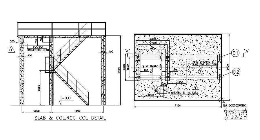
The RCC slab and column plan and section CAD drawing that shows connecting beam, column and RCC slab view design which comprises sliding analysis to rationalize horizontal loads. Thank you for downloading the AutoCAD file and other CAD program from our website.
Uploaded by:

