Staircase Ladder With Terrace Plan Cad Drawing DWG File
Description
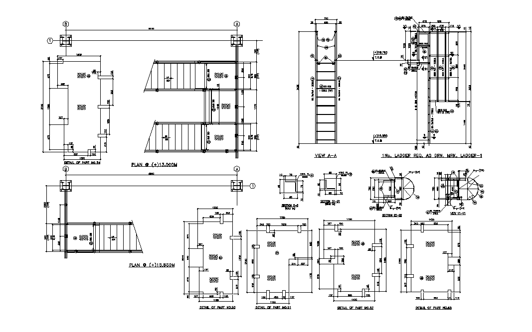
The AutoCAD drawing of staircase ladder with terrace plan drawing which shows RCC slab with dimension detail. Thank you for downloading the AutoCAD file and other CAD program from our website.
Uploaded by:

