Apartment Floor Plan Detail in 2D AutoCAD DWG Drawing
Description
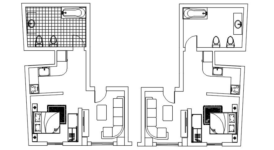
Apartment floor plan detail drawing provided in this AutoCAD file. in this file, the living room, bedroom, wash area, toilet detail drawing given with furniture layout in this file. this can be used by architects and engineers. Download this 2d AutoCAD drawing file.
Uploaded by:

