Concert hall enlarged detail drawing stated in this AutoCAD file. Download this 2d AutoCAD drawing file.
Description
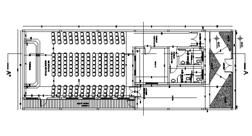
Concert hall enlarged detail drawing stated in this AutoCAD file. this file consists of hall sitting arrangments, utility detail, stage detail, services detail are given with dimensions and area specifications. This can be used by architects and engineers. Download this 2d AutoCAD drawing file.
File Type:
DWG
File Size:
405 KB
Category::
Interior Design
Sub Category::
Hotel And Restaurant Interior
type:
Gold
Uploaded by:

