Industrial plant detail drawing provided in this AutoCAD file. Download this 2d AutoCAD drawing file.
Description
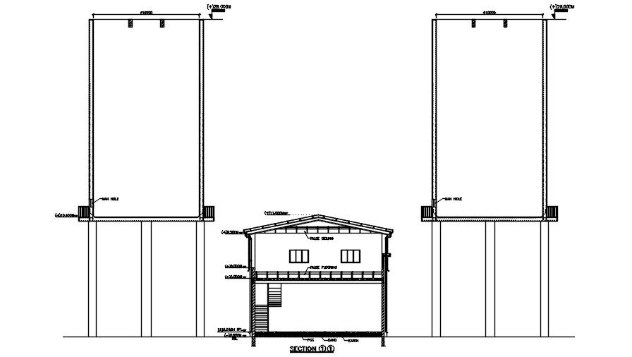
Industrial plant detail drawing provided in this AutoCAD file. this file consists of control room section services detail given and staircase detail drawing given with dimensions and area specifications. This can be used by architects and engineers. Download this 2d AutoCAD drawing file.
Uploaded by:

