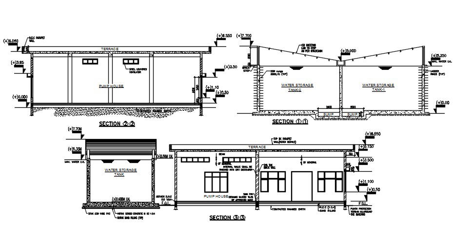
Elevation and section detail of Pump house and water tank. Download the AutoCAD 2D file.
Description
AutoCAD 2D Elevation and section detail of Pump house and water tank is described. Each plan incorporated with the structural elements & designed as par to standard requirements. Download the AutoCAD DWG file form our website for enhanced attributes.
File Type:
DWG
File Size:
147 KB
Category::
Construction
Sub Category::
Construction Detail Drawings
type:
Gold

Uploaded by:
Neha
mishra

