Column structural detail drawing specified in this AutoCAD file. Download this 2d AutoCAD drawing file.
Description
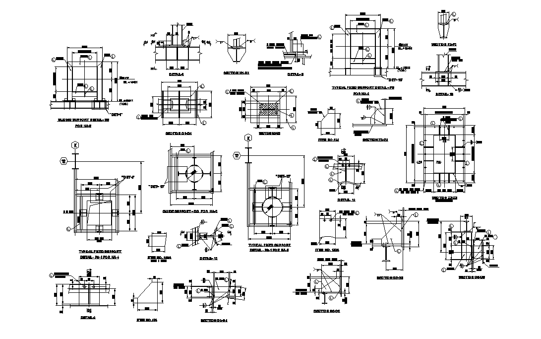
Column structural detail drawing specified in this AutoCAD file. this file consists of section detail and structural detail of the column with dimensions and area specification given in this file. this can be used by architects and engineers. Download this 2d AutoCAD drawing file.
Uploaded by:

