The hotel beam-column plan detail drawing separated in this AutoCAD file. Download this 2d AutoCAD drawing file.
Description
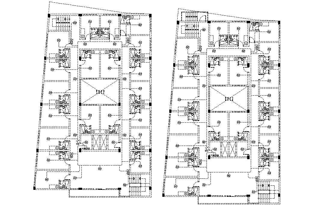
The hotel beam-column plan detail drawing separated in this AutoCAD file. this file consists of a floor plan with rooms and services and utilities detail drawing area specifications given in this file. this can be used by architects and engineers. Download this 2d AutoCAD drawing file.
Uploaded by:

