Architecture House Plan With Power Layout CAD Drawing DWG File
Description
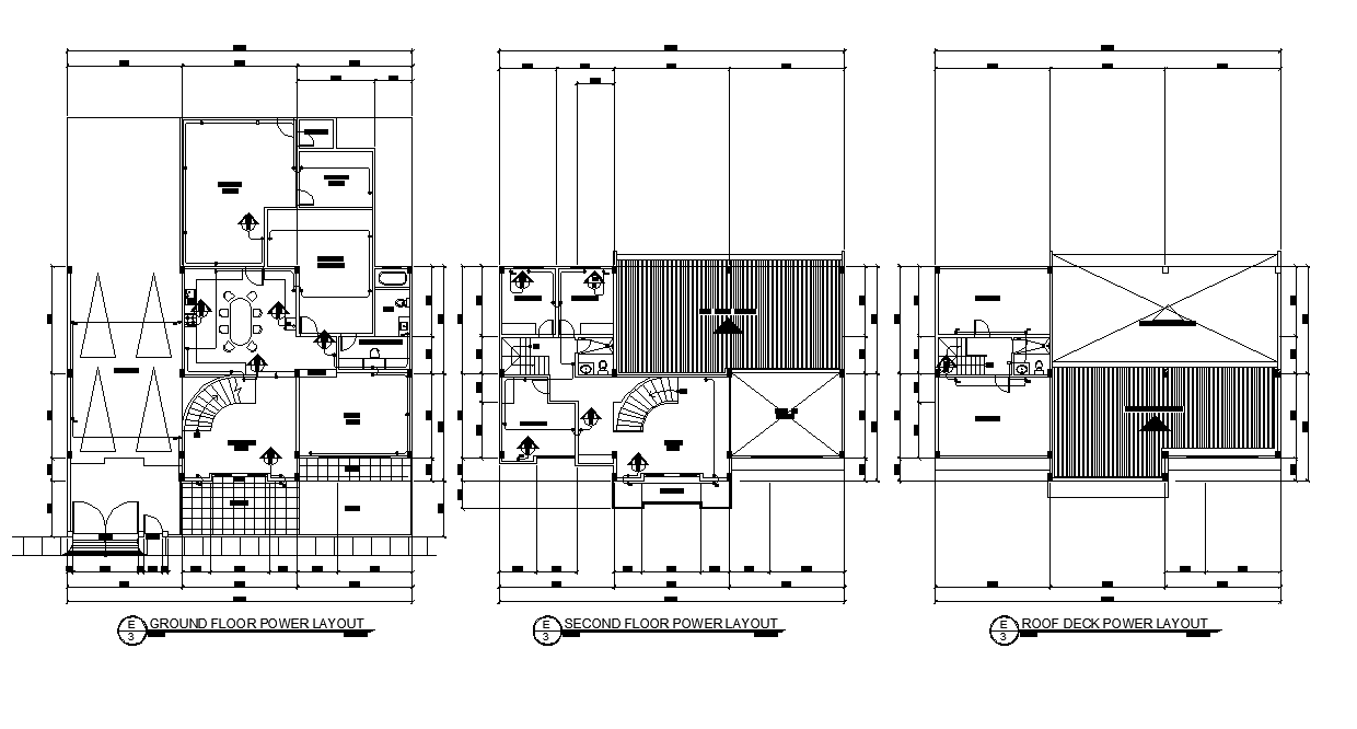
The Residence modern architecture plan CAD drawing includes ground floor, first floor and roof deck with power layout plan design that shows 4 bedrooms, modular kitchen, drawing room, living area, family hall, Sundek area, and car parking porch area with compound wall design. Thank you for downloading the AutoCAD file and other CAD program from our website.
Uploaded by:

