Conduct Panel Electrical Board Drawing DWG File
Description
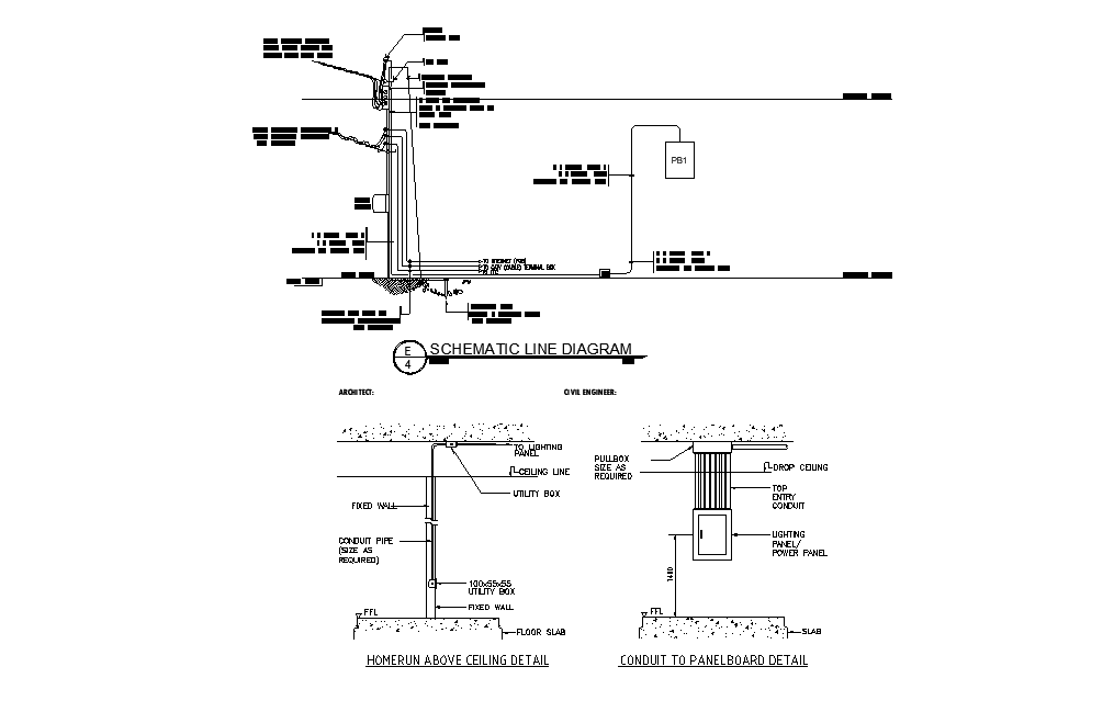
The electrical conduct panel board CAD drawing that shows wire service entrance and telecom service entrance, lighting panel with ceiling and wiring network view detail. Thank you for downloading the AutoCAD file and other CAD program from our website.
Uploaded by:

