Factory Plant Sectional Elevation CAD Drawing DWG File
Description
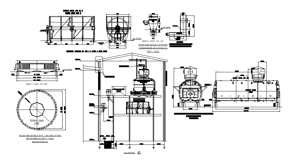
the factory plant building with tank section CAD drawing that shows proposed equipment loads shall not transfer to existing, building columns and structural while designing. consider loads of the future equipment while designing. check with suitability of additional roof loading on these existing building columns refer zameel drawing for existing details. Thank you for downloading the AutoCAD file and other CAD program from our website.
Uploaded by:

