Column Beam Joint Section CAD Drawing DWG File
Description
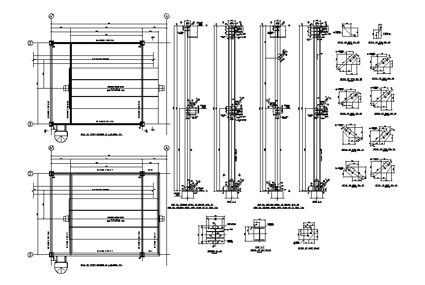
The performance of framed structures column beam joint section depends upon the individual structural elements also upon the integrity of the joints. all dimensions are in mm and levels are in meter. Thank you for downloading the AutoCAD file and other CAD program from our website.
Uploaded by:

