Steel Structure Column Beam Section Drawing DWG File
Description
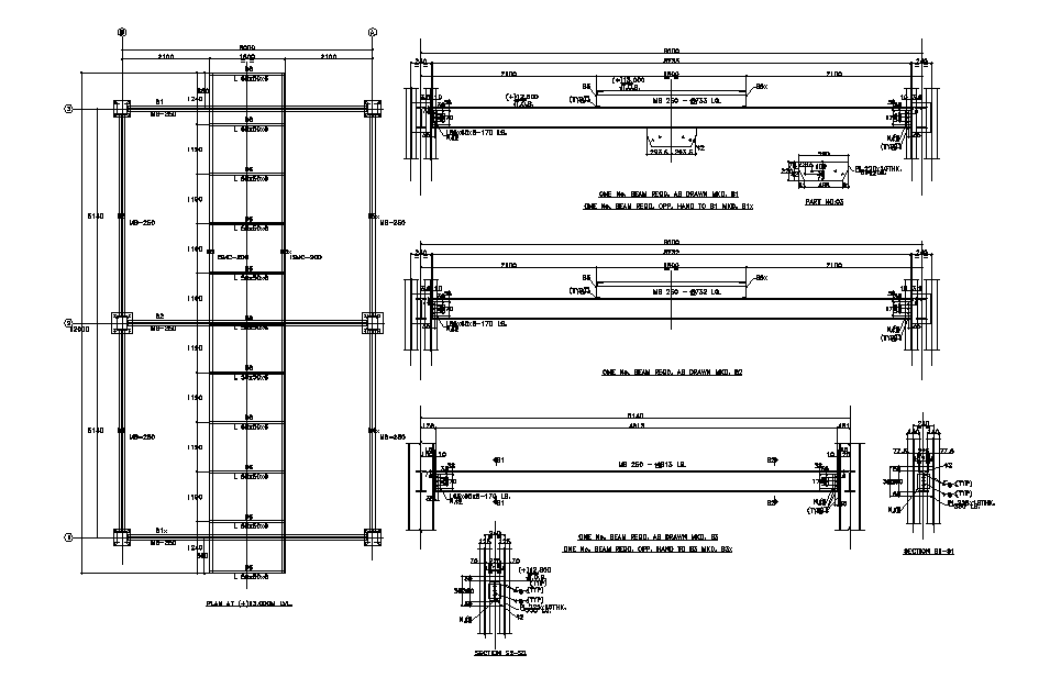
The steel structure building column beam section CAD drawing which consist the channel of sections have reasonably solid strength and poor lateral stability with plates and structural steel material to conform and welding symbols are as per length and load bearing requirement. Thank you for downloading the AutoCAD file and other CAD program from our website.
Uploaded by:

