House Construction Foundation plan And Roof Framing Plan DWG File
Description
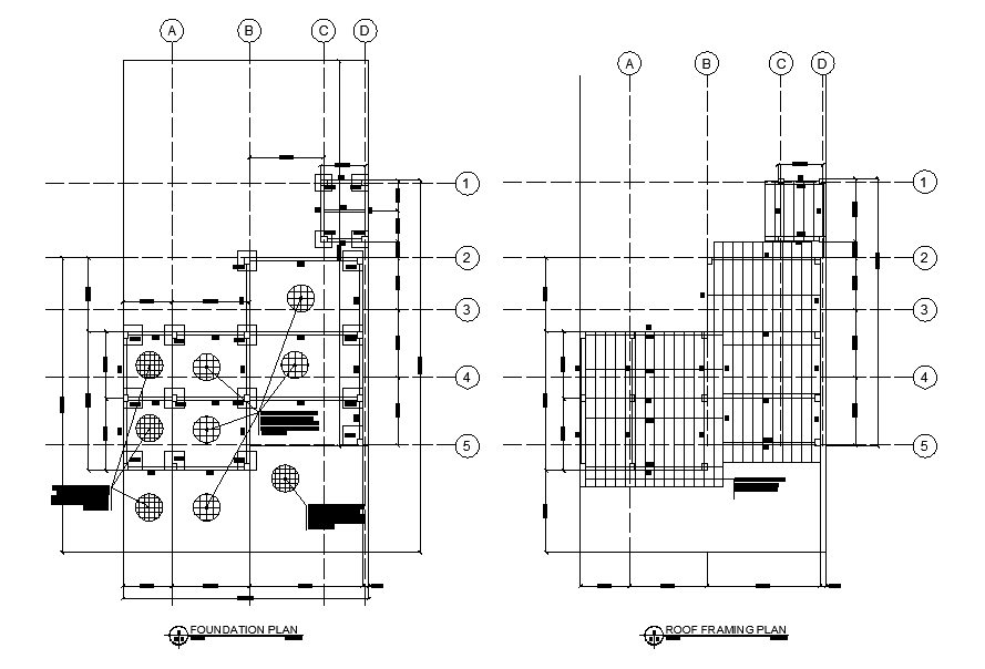
The Residence house construction AutoCAD drawing have detail of foundation plan and roof framing plan with dimension detail that framing plans provide structural information such as the floor heights and space planning. Thank you for downloading the AutoCAD file and other CAD program from our website.
File Type:
DWG
File Size:
195 KB
Category::
Construction
Sub Category::
Construction Detail Drawings
type:
Gold
Uploaded by:

