2 BHK House Floor Plan With Column Layout Drawing DWG File
Description
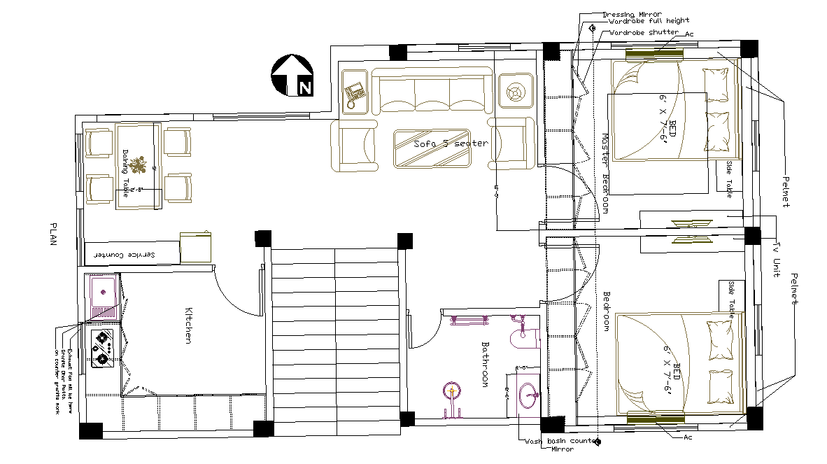
The residence house floor plan CAD drawing includes 2 bedrooms, drawing room, dining area and modular kitchen. the additional drawing such as a column layout plan and furniture design. Thank you for downloading the AutoCAD file and other CAD program files from our website.
Uploaded by:
