Water And Drainage Plumbing Pile Line Section CAD Drawing DWG File
Description
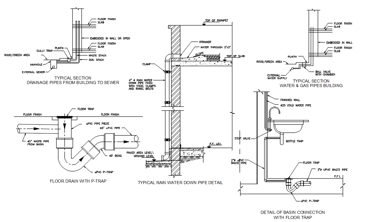
The ware and drainage plumbing pipe line section blocks drawing that shows internal pipe line, rain water down pipe line, basin connection with floor, drainage pipes from building to sewer, and floor drain with p-trap detail. Thank you for downloading the AutoCAD file and other CAD program files from our website.
File Type:
DWG
File Size:
2.8 MB
Category::
Dwg Cad Blocks
Sub Category::
Autocad Plumbing Fixture Blocks
type:
Gold
Uploaded by:

