4 BHK And 5 BHK Bungalow Layout Plan CAD Drawing DWG File
Description
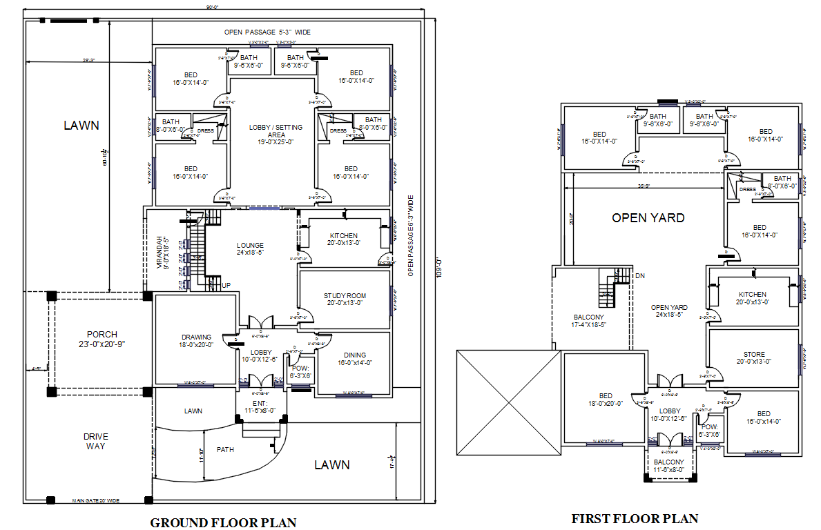
90'X109' plot size for architecture bungalow ground floor and first floor layout plan that shows 4 BHK and 5 BHK plan with front side lawn, back side 5' wide passage, and 23'X20' wide 2 car parking porch area. Thank you for downloading the AutoCAD file and other CAD program files from our website.
Uploaded by:

