15X9 Meter House Plan With Center Line Working Drawing DWG File
Description
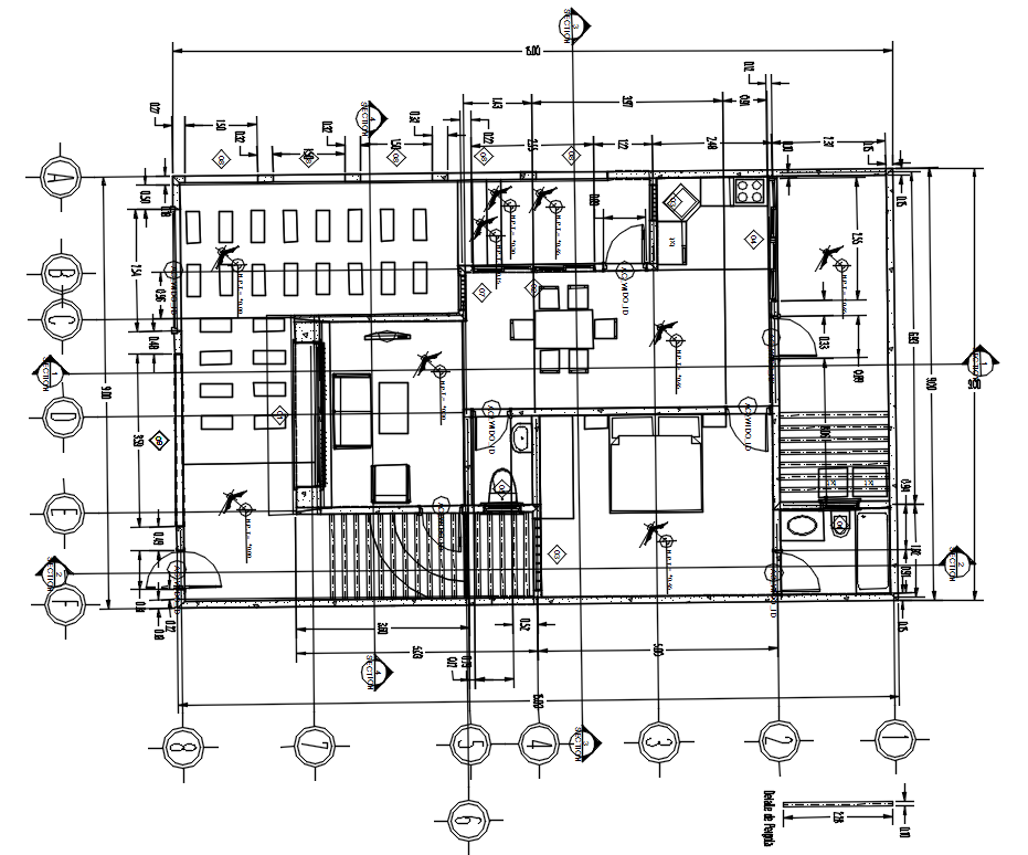
The Residence house ground floor plan with furniture layout design. the length and breadth of the plan is 15m and 9m respectively plot size. This plan consists of kitchen, dining, master bedroom with attached toilet and drawing. the front side has 2.5 meter open space. Thank you for downloading the 2D AutoCAD DWG drawing file and other CAD program files from our website.
Uploaded by:

