60 Square Meter House Plan With Electrical Lighting Layout CAD Drawing DWG File
Description
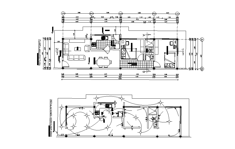
The residence house ground floor plan AutoCAD shows furniture layout design which consist 2 bedrooms, kitchen, dining area and drawing room. the total construction buildup area is 60 square meter. also has false ceiling light with wiring design. Thank you for downloading the AutoCAD file and other CAD program from our website.
Uploaded by:

