Commercial Building Front Elevation Design Download DWG File
Description
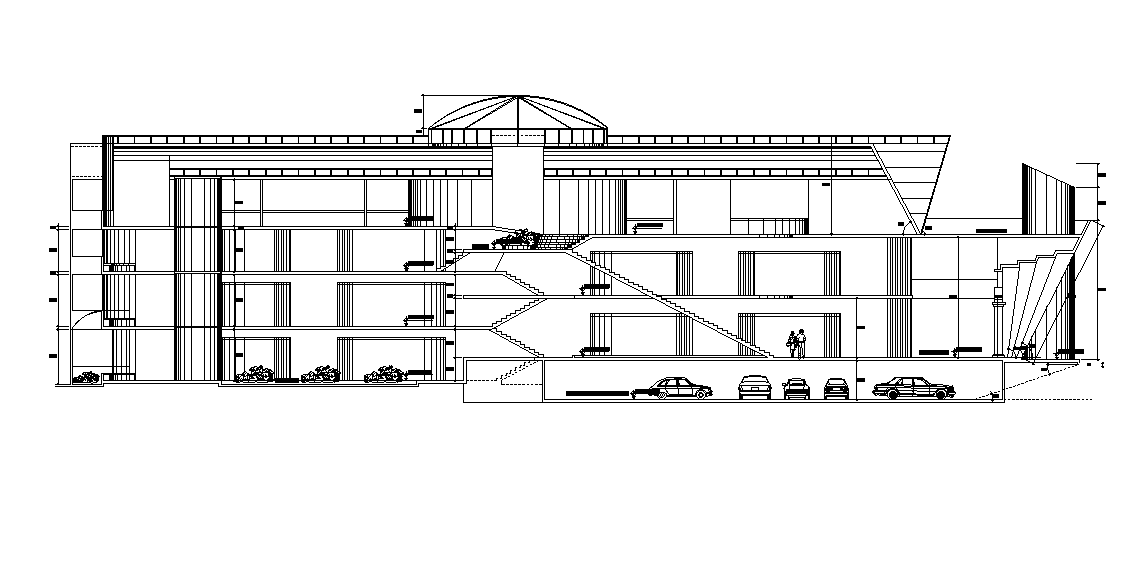
The commercial business hub building front elevation design that shows floor level building model design that shows front side vehicle parking, staircase and all dimension detail. Thank you for downloading the AutoCAD file and other CAD program from our website.
Uploaded by:

