House Front Elevation Design And Section Drawing DWG File
Description
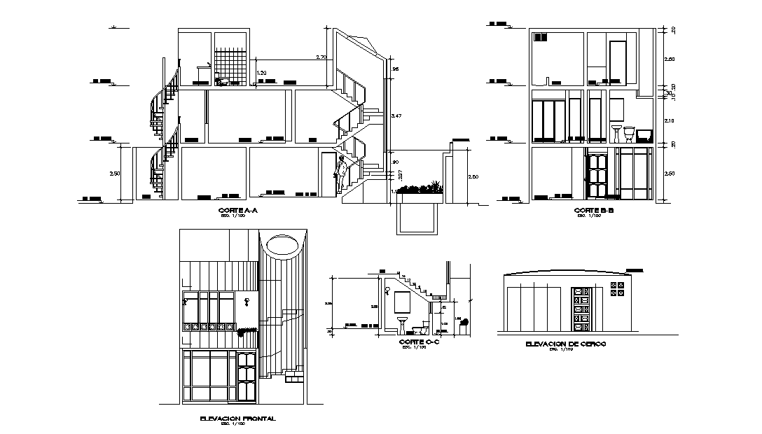
the architecture residence house building front elevation design and section CAD drawing that show 3 story floor level building model design, staircase view and toilet section drawing with all dimension detail. Thank you for downloading the AutoCAD file and other CAD program from our website.
Uploaded by:

