10x20m house plan is given in this 2D Autocad DWG drawing file. Download the 2D Autocad DWG drawig file.
Description
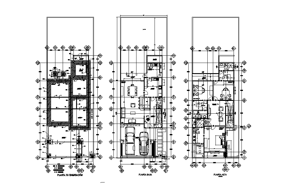
10x20m house plan is given in this 2D Autocad DWG drawing file. The length and breadth of the plan is 10m and 20m respectively. This plan consists of vestidor, water closets, bath, master bedroom, general toilet, store room, puja room, car parking, garden, living hall, kitchen, dining, bedroom, washing area, master toilets and drawing room. For more details download the Autocad DWG drawing file. Thank you for downloading the 2D AutoCAD DWG drawing file and other CAD program files from our website.
Uploaded by:

