Resort Project AutoCAD Drawing Download DWG File
Description
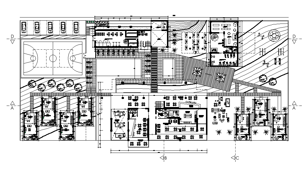
The Architecture resort layout plan AutoCAD drawing which consist reception area, basket ball play ground, GYM, administration office, parking lot, play zone, and dining area. Thank you for downloading the AutoCAD file and other CAD program from our website.
Uploaded by:

